Lake views for miles.
Experience the epitome of West Coast living in this exquisite 2,684 sq ft custom-built home, where breathtaking lake views and superior craftsmanship converge. Step into the expansive open-concept kitchen, dining, and living areas, adorned with vaulted ceilings and rich hardwood flooring. French doors seamlessly extend your living space onto a spacious deck—perfect for soaking in the stunning lake panoramas.
The main floor boasts a serene primary suite featuring vaulted ceilings, French doors leading to the deck, 5-piece ensuite, and a generous walk-in closet. An additional office space, powder room, and laundry room enhance the home's functionality.
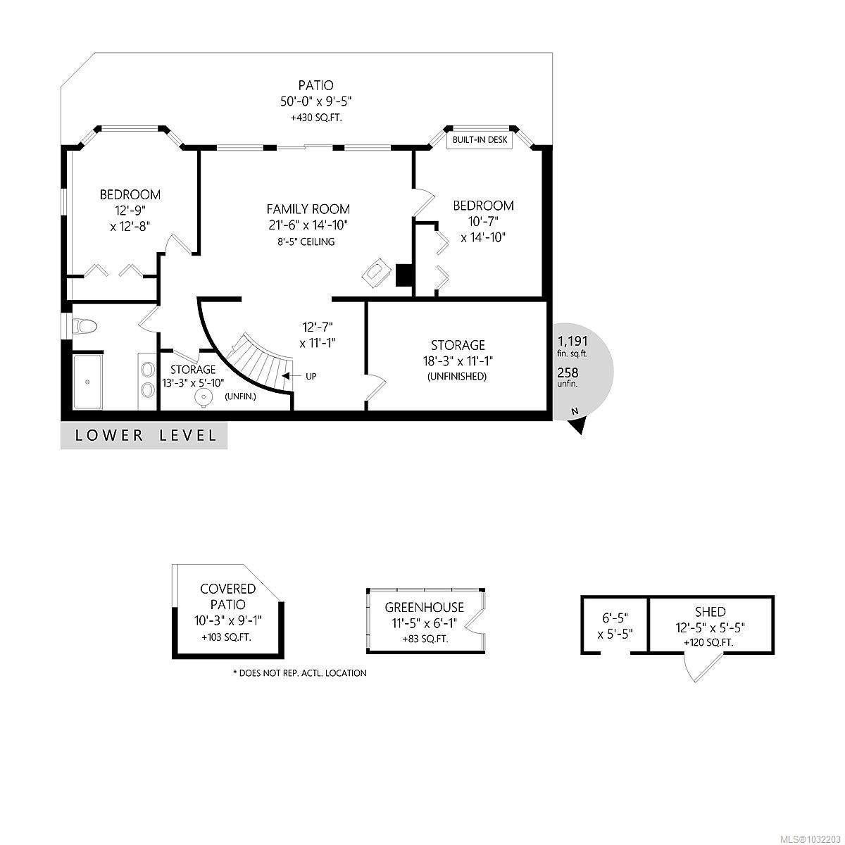
Descend the striking spiral staircase to discover a lower level with 9-foot ceilings, a cozy family room, two well-appointed bedrooms, a full bathroom, a storage room, and a mechanical room, offering ample space for family and guests.
Outside, the low-maintenance yard is a haven of relaxation and utility, featuring landscaped gardens, a charming gazebo, and an exposed concrete driveway leading to three garages totaling approximately 1,200 sq ft. A garden shed and gated entry complete this exceptional property.
Don't miss the opportunity to own this remarkable home that perfectly blends luxury, comfort, and natural beauty.
Address
10662 Alder Cres
List Price
$1,050,000
Property Type
Residential
Type of Dwelling
Single Family Residence
Style of Home
West Coast
Transaction Type
Sale
Area
Duncan
Sub-Area
Du Youbou
Bedrooms
3
Bathrooms
3
Floor Area
2,684 Sq. Ft.
Lot Size
11761 Sq. Ft.
Lot Size (Acres)
0.27 Ac.
Year Built
1997
MLS® Number
1032203
Listing Brokerage
RE/MAX Island Properties (DU)
Basement Area
Finished, Full, Walk-Out Access
Postal Code
V0R 3E0
Tax Amount
$5,234.27
Tax Year
2025
Features
Baseboard, Cathedral Entry, Ceiling Fan(s), Dining/Living Combo, Dryer, Eating Area, Electric, F/S/W/D, French Doors, Heat Pump, Insulated Windows, Mixed, Refrigerator, Storage, Vaulted Ceiling(s), Washer, Winding Staircase, Wood, Wood, Workshop
Amenities
Accessible Entrance, Balcony/Deck, Easy Access, Family-Oriented Neighbourhood, Fencing: Full, Garden, Ground Level Main Floor, Landscaped, Level, Low Maintenance Yard, Park Setting, Primary Bedroom on Main, Private, Quiet Area, Recreation Nearby, Southern Exposure, Storage Shed, Workshop




































































